Skip to content
Client
People's Community Clinic
Location
Austin, TX
Size
59,000 s.f.
Services
Architecture, Interior Design, Furniture, Sustainability
Certifications
AEGB 2-Star Rated
Awards
2016 - IIDA Texas/Oklahoma Chapter, Healthcare Excellence in Design
Photographer

Since 1970, People’s Community Clinic, a not-for-profit organization, has been committed to delivering high-quality, affordable healthcare with dignity and respect. Faced with an overcrowded facility that limited patient capacity, PCC sought a new home that could meet their growing needs.

Collaborating closely with our longtime client and friends at People’s Community Clinic, we encouraged them to envision a facility that transcended the constraints of their previous space. The design prioritizes approachability and ease of navigation, accommodating a growing and diverse client base. A feasibility study evaluated multiple sites, ultimately selecting a location that enhances community impact and improves access for their expanding patient population.

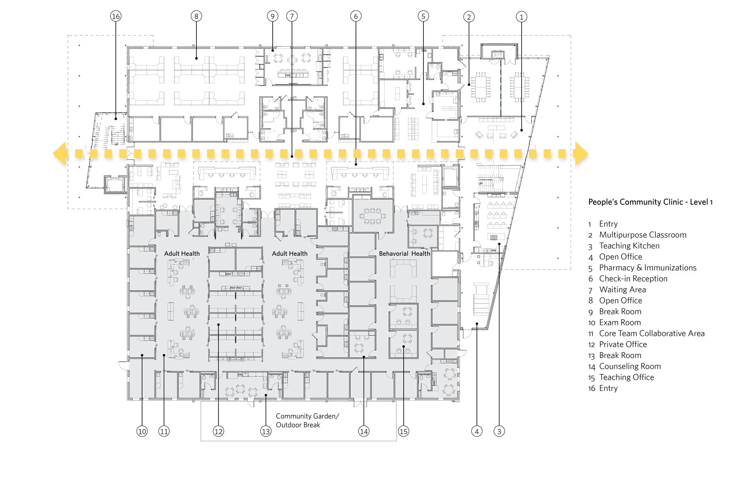
The resulting 59,000-square-foot clinic fosters patient engagement, family involvement, and strong connections between care teams and patients. Anchored by the principle of patient-centered care, the design has significantly increased accessibility and capacity, enabling PCC to double its annual patient reach from 10,000 to 20,000.

Designers found an old, 1982 building that they lovingly named the ‘ugly-duckling’. The building was gutted with the shell left intact.

Before

After

People's Community Clinic
People's Community Clinic

Two opposing entry points were added to emphasize the client’s mission in easing accessibility to its patients.

People's Community Clinic

The sense of “home” is felt by old and new patients, with intuitive way finding in multiple languages and friendly care boards that display the familiar faces of their providers.

People's Community Clinic

Based on extensive research, exam rooms were sized to accommodate seating for family members and carefully laid out to remove barriers between the patient and the provider. Each “pod” was organized in a ring with private offices at the core, surrounded by open office, collaborative areas and exam rooms.

A brand new teaching kitchen and multipurpose classroom that offered prenatal group visits and fitness classes were visibly placed to further support People’s dedication to patient centered care.

Watch more

Related Projects

YMCA Camp Moody

YMCA Camp Moody

Community/Recreation, Non-Profit, Planning, In Motion

Creative Action Community Arts Collaborative

Creative Action Community Arts Collaborative

Non-Profit, Community/Recreation, In Motion, Academic